江西眾和生物科技有限公司2000t/a丁噻隆項目安全現狀評價報告
評價報告名稱 | 江西眾和生物科技有限公司2000t/a丁噻隆項目安全現狀評價報告 | |||
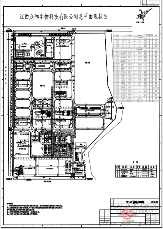
項目簡介 | 江西眾和生物科技有限公司是江西眾和化工有限公司在永修縣云山經濟開發區星火工業園成立的子公司,法定代表人連建東,成立于2014年11月26日,屬有限責任公司分公司,江西眾和化工有限公司創建于1979年,旗下共有6家分子公司,是一家集研制、生產、營銷、推廣于一體的現代化的農藥定點生產企業。經過30多年的發展,現已成為全國規模最大、品種最全的制劑農藥廠家之一。 江西眾和化工有限公司于2014年在江西省永修縣云山經濟開發區星火工業園內設立“江西眾和化工有限公司永修星火生產基地”(以下簡稱眾和公司星火基地),該公司星火基地總占地面積260畝,總投資5200萬元,公司已建成500t/a98%唑草酮、1000t/a98%甲磺草胺、1100t/a96%濃硫酸項目于2017年06月15日(有效期至2020年6月14日)換取安全生產許可證,編號:(贛)WH安可證字【2017】0940號。由于市場原因,500t/a98%唑草酮、1000t/a98%甲磺草胺、1100t/a96%濃硫酸裝置目前處于停產狀態,企業于2017年另外投資建設年產2000噸丁噻隆項目,該項目于2020年6月2日完成了驗收。 該項目在生產過程涉及到主要原輔料產品中屬于危險化學品的有二甲苯、特戊酰氯、三氯氧磷、硫酸二甲酯、氰酸鈉、鄰二氯苯、氨水、三乙胺、液堿、片堿、一甲胺、二硫化碳、水合肼、鹽酸、濃硫酸、甲醇、活性炭及RTO裝置使用的柴油,中間產物有甲氨基甲酰氯、氯化氫等,不涉及中間產品,副產物包括硫酸鈉、硫磺、硫化銨、磷酸氫二胺以及鹽酸,產品為丁噻隆;該項目涉及有機溶劑二甲苯、鄰二氯苯、三乙胺等回收套用及廢水中提取甲醇(外售)。該項目副產品鹽酸、硫磺、甲醇及產品丁噻隆需取得安全生產許可證。 公司于2020年8月3日取得危險化學品生產許可證,安全生產許可證編號:(贛)WH安許證字[2017]09400號,有效期由2020年6月15日至2023年6月14日,許可范圍為:咪唑酮(50t/a,91%)、甲磺草胺(1000t/a,95%)、濃硫酸(1100t/a,96%)、丁噻?。?000t/a)、甲醇(回收,238.61t/a)、鹽酸(副產品,1500t/a)。 該公司自2020年生產許可證延期至今未發生重大安全事故。 江西眾和生物科技有限公司實行總經理負責制,成立了安全生產委員會,下設安全生產管理辦公室(安全部),全面負責公司的安全環保生產工作。 該公司現總人數50人,生產工人40人,管理人員(含技術人員)10人。生產及輔助生產崗位采用24小時連續運轉,生產崗位四班三運轉,每班工作8小時連續生產,其他部門均采用白班配合值班的工作制度,每天工作8小時。生產裝置操作天數為300天,年操作為7200小時。 | |||
評價人員 | 職責 | 姓名 | 職業資格證書編號 | 從業登記 編號 |
項目負責人 | 李佐仁 | S011035000110201000578 | 034397 | |
項目組成員 | 李佐仁 | S011035000110201000578 | 034397 | |
劉良將 | S011032000110203000723 | 040951 | ||
徐美英 | 1600000000200750 | 022732 | ||
羅明 | 1600000000300941 | 039726 | ||
徐志平 | S011032000110203000975 | 040952 | ||
報告編制人 | 李佐仁 | S011035000110201000578 | 034397 | |
徐志平 | S011032000110203000975 | 040952 | ||
報告審核人 | 王東平 | S011035000110202001266 | 040978 | |
過程控制人 | 劉求學 | S011044000110192002758 | 036807 | |
技術負責人 | 趙俊俊 | S011035000110201000593 | 029041 | |
發現的問題及安全對策措施 |
| |||
評價結論 | 一、主要評價結果簡述 通過對江西眾和生物科技有限公司2000t/a項目生產裝置及輔助設施(靜態狀態下)安全生產狀況的安全生產設施檢查、檢測以及安全技術措施和管理體系審核、檢查,以及定性、定量分析和評價,得出以下結果: 1、本項目存在的危險、有害因素有火災、爆炸、中毒和窒息、觸電、機械傷害、物體打擊、車輛傷害、高處墜落、容器爆炸、灼燙、灼傷、淹溺、粉塵、噪聲、高溫、坍塌等,其中火災、爆炸、中毒、灼傷最主要的危險因素。 2、根據《危險化學品重大危險源辯識》(GB18218-2018)辯識,對本項目涉及的危險化學品進行重大危險源辨識,該項目涉及的危險化學品的儲存單元中201-1貯罐區二及201-2貯罐區三構成四級重大危險源,其余生產單元及儲存單元均未構成危險化學品重大危險源。 3、根據《危險化學品目錄(2015年)》(國家安全生產監督管理總局等十部門[2015年]第5號)、《危險化學品目錄》(2022年 十部門第8號公告)辯識,該項目涉及的原輔材料及產品中屬于《危險化學品目錄》(2015年)中物質的有二甲苯、特戊酰氯、三氯氧磷、硫酸二甲酯、鄰二氯苯、氨水、三乙胺、液堿(30%)、片堿、一甲胺(40%)、二硫化碳、水合肼(80%)、鹽酸、濃硫酸、甲醇、柴油、氯化氫等。 4、根據《易制毒化學品管理條例》國務院令第445號(2018年國務院703號令修改)的規定,本項目涉及的硫酸、鹽酸屬于第三類易制毒化學品 5、根據《中華人民共和國監控化學品管理條例》(國務院令第190號)等有關規定,對該項目使用或生產的危險化學品進行監控化學品辨識得出,本項目使用的原料、產品中不涉及監控化學品。 6、根據《高毒物品名錄》(2003年版)的規定,本項目涉及的硫酸二甲酯、二硫化碳、無水肼、氰酸鈉(氰化物)屬于高毒物品。 7、根據《國家安全監管總局關于公布首批重點監管的危險化學品名錄的通知》(國家安全生產監督管理總局安監總管三[2011]95號)及《國家安全監管總局關于公布第二批重點監管危險化學品名錄的通知》(國家安全生產監督管理總局安監總管三[2013]12號)辯識,本項目生產過程中涉及的甲醇、二硫化碳、一甲胺溶液、硫酸二甲酯為重點監管的危險化學品。 8、根據《易制爆化學品安全管理條例[2017年版]》(公安部公告[2017.5.21])辯識,本項目中一甲胺溶液、硫磺、水合肼屬于易制爆危險化學品。 9、根據《特別管控危險化學品目錄》應急管理部等四部門公告[2020]第1號的規定,本項目甲醇為特別管控危險化學品。 10、根據《國家安全監管總局關于公布首批重點監管的危險化工工藝目錄的通知》(國家安全生產監督管理總局安監總管三〔2009〕116號)、《國家安全監管總局關于公布第二批重點監管危險化工工藝目錄和調整首批重點監管危險化工工藝中部分典型工藝的通知》(國家安全生產監管總局安監總管三[2013]3號)辨識,本項目不涉及重點監管的危險化工工藝。 11、危險度評價法結果表明,108生產車間六和108-1生產車間六發輔助區危險度等級為Ⅱ級,屬中度危險;201貯罐區與201-1貯罐區二危險度等級為Ⅰ級,屬高度風險;其他項目裝置均在屬低度危險。該項目生產中對工藝的溫度、流量、壓力等參數設置有檢測、自動控制、聯鎖、報警等裝置,以有效監控異常情況并及時處理;對罐區儲罐配備溫度、壓力、液位等信息的不間斷采集和監測系統以及可燃氣體和有毒有害氣體泄漏檢測報警裝置。 12、作業條件危險性分析表明,項目的201-1可能出現的火災爆炸屬于顯著危險,其他評價單元潛在危險均屬于“一般危險,需要注意” 企業對甲類罐區配備溫度、壓力、液位、流量、組份等檢測報警裝置及有毒有害氣體泄漏檢測報警裝置,設置DCS系統,設置有緊急切斷物料裝置;設置了尾氣吸收處理設施;加上對員工進行安全培訓,使員工熟悉本崗位的安全操作技能和應急措施,定期對重點部位進行檢查,可使該作業場所作業相對安全。 13、采用《安全生產許可證條件檢查表》等進行評價和分析,結果表明:該企業表中各項符合危險化學品生產企業安全生產許可證發證條件。 14、根據《應急管理部關于印發危險化學品企業安全分類整治目錄(2020年)的通知》(應急〔2020〕84號)檢查的結果,該項目108-1生產車間六輔助區設置機柜間,現還未進行搬遷,符合《危險化學品企業安全分類整治目錄(2020年)》中停產停業整頓或暫時停產停業、停止使用相關設施設備類的第5條要求,企業正在停產停業整頓。 15、根據《關于印發<化工和危險化學品生產經營單位重大生產安全事故隱患判定標準(試行)>的通知》(國家安全生產監督管理總局安監總管三〔2017〕121號)對企業是否存在重大生產安全事故隱患進行判定,該項目不涉及重大安全事故隱患。 16、根據《江西省應急管理廳關于印發〈江西省化工企業自動化提升實施方案〉(試行)的通知》(贛應急字〔2021〕190 號)進行檢查,該公司還未根據改造方案進行施工改造,不符合自動化提升的要求。 17、企業現在電工作業人員為1人,不滿足作業要求。 二、評價結論: 江西眾和生物科技有限公司符合國家產業政策,企業的安全性較好,安全條件滿足相關要求,安全設施符合國家現行法律、法規和技術標準、規范要求。企業有健全的安全生產管理組織機構,建立了較為完善的安全生產管理規章制度,安全管理基本有章可循。企業日常管理較為嚴格,生產至今未發生安全事故。評價時現生產裝置為停產階段,對安全設施進行維護。近期通過對存在的安全問題進行了整改,目前企業正在積極推動自動化改造提升工作。 綜上所述:江西眾和生物科技有限公司應積極推進不符合項的整改進度,按照國家現行有關安全生產法律、法規和部門規章及標準規范要求,根據《危險化學品企業安全分類整治目錄(2020年)》要求,完成車間機柜間搬遷工作,按照《江西省應急管理廳關于印發〈江西省化工企業自動化提升實施方案〉(試行)的通知》,完成全流程自動化控制改造方案后,滿足安全生產條件要求。 | |||
現場工作時間 | 2023.3.16 | 報告提交時間 | 2023.5.15 | |
現場參加人員 | 圖1:徐志平(左)、企業、李佐仁 | |||
現場照片 |
| |||
被評價單位 信息反饋情況 | ||||





